產品介紹
咨詢服務熱線:13957717877
產品概述
資料下載
相關產品
相關資訊


為什么選擇GRD9S-F100型物聯網智能小型斷路器? |
GRD9S-F100型物聯網智能小型斷路器,在傳統過載、短路保護基礎上,深度融合物 聯網技術與電氣安全保護功能,提供的電氣參數監測與智能化管理能力。適用于對 用電安全、能耗管理及遠程控制有較高要求的場所,幫助用戶提升配電系統的可靠性、 可視化程度與運維效率。 |
GRD9S-F100型物聯網智能小型斷路器產品優勢: |
1、保護功能:集成過壓、欠壓、過載、欠載、缺相、斷零、漏電、功率保護等十余 種保護功能,覆蓋常見電氣故障類型。 |
2、智能控制靈活:支持定時控制、自動合閘、上電合閘、預警設置等,適應多種自動化 場景。 |
3、安全機制完善:具備漏電自檢、漏電突變保護與漏電重合閘功能,提升人身與設備安 全等級。 |
4、狀態可視可管:通過通訊接口實時上傳電壓、電流、功率、報警等信息,支持遠程監 測與策略設定。 |
5、適用場景廣泛:從住宅、商業建筑到工業配電箱柜,均可靈活嵌入使用。 |
GRD9S-F100型物聯網智能小型斷路器產品特點: |
1、標準符合性高:嚴格遵循國家電氣標準,安全可靠。 |
2、電流規格齊全:額定電流覆蓋20A、32A、63A、100A,適應不同負載場景。 |
3、分斷能力強:短路分斷能力達6kA,有效保障線路安全。 |
4、脫扣類型可選:提供B型、C型、D型脫扣曲線,匹配各類負載特性。 |
5、動作響應快:合閘時間<1.5s,分閘時間<1.0s,迅速實現保護與控制。 |
6、安裝便捷:采用35mm標準導軌安裝,兼容常見配電箱結構。 |
7、多重防護設計:具備手自一體控制、機械檢修鎖,支持本地與遠程操作。 |
8、穩定通訊接口:集成RS485通訊方式,便于與智能系統組網集成。 |
GRD9S-F100型物聯網智能小型斷路器產品應用: |
1、智能配電系統:用于樓宇、園區、工廠的配電箱,實現遠程分合閘與用電監測。 |
2、公共設施與基礎設施:適用于學校、醫院、車站等場所的線路保護與電能管理。 |
3、工業設備控制:配合電機、加熱設備等負載,提供過載、缺相、不平衡等保護。 |
4、智慧用電場景:融入能源管理平臺,輔助進行負荷分析、故障預警與用電優化。 |
5、安全要求較高的場合:如數據中心、實驗室等,借助其多重保護與漏電監測功能提升 電氣安全水平。 |

GRD9S-F100型物聯網智能小型斷路器技術參數: |
符合標準 | GBT 10963.1 NBT42149 | GBT 10963.1 NBT42149 |
Poles | 1P、2P | 3P、4P |
額定電壓 | AC230V 50Hz | AC400V 50Hz |
額定電流 | 優選20A、32A、63A、100A | 優選20A、32A、63A、100A |
脫扣類型 | B型、C型、D型 | B型、C型、D型 |
短路分斷能力 | Icu=lcs=6kA | Icu=lcs=6kA |
機械壽命 | 大于20000次 | 大于20000次 |
電氣壽命 | 大于6000次 | 大于6000次 |
合閘時間 | <1.5s | <1.5s |
分閘時間 | <1.0s | <1.0s |
漏電類型 | ----- | ---- |
漏電動作時間 | ----- | ---- |
防護等級 | lp20 | Ip20 |
安裝方式 | 35mm標準導軌 | 35mm標準導軌 |
工作環境溫度 | -40~70℃ | -40~70℃ |
手自一體控制 | 有 | 有 |
機械檢修鎖 | 有 | 有 |
電量計量 | 有精度1.0 | 有精度1.0 |
通訊方式 | RS485 | RS485 |
GRD9S-F100型物聯網智能小型斷路器產品功能: |
| 序號 | 保護功能 | 跳閘類型 | 產品類型 | 參數設置 | 設置值 AC型 | 出廠 默認值 | |
1P 2P | 3P 4P | ||||||
| 1 | 過壓保護 | 關閉/報警/跳閘 | 關閉 | 關閉 | 過壓整定 | 250~350V | 280V |
過壓延時 | 0-10s | 3s | |||||
| 2 | 欠壓保護 | 關閉/報警/跳閘 | 關閉 | 關閉 | 欠壓整定 | 110-200V | 165V |
欠壓延時 | 0-10s | 3s | |||||
| 3 | 過載保護 | 關閉/報警/跳閘 | 跳閘 | 跳閘 | 過載整定 | 0.6ln~In | In |
過載延時 | 0-10s | 3s | |||||
| 4 | 欠載保護 | 關閉/報警/跳閘 | 關閉 | 關閉 | 欠載整定 | 1-90% | 5% |
欠載延時 | 0-10s | 5s | |||||
| 5 | 高溫保護 | 關閉/報警/跳閘 | 報警 | 報警 | 高溫整定 | 60~100℃ | 80℃ |
高溫延時 | 0-10s | 5s | |||||
| 6 | 缺相保護 | 關閉/報警/跳閘 | / | 跳閘 | 缺相整定 | 10-100V | 30V |
缺相延時 | 0-10s | 3s | |||||
| 7 | 斷零保護 | 關閉/報警/跳閘 | 跳閘 | 跳閘 | 延時整定 | 0-10s | 1s |
| 8 | 斷電保護 | 關閉/報警/跳閘 | / | / | 斷電電壓值 | 0-100V | 80V |
斷電延時 | 0-5s | 2s | |||||
| 9 | 過功率保護 | 關閉/報警/跳閘 | 關閉 | 關閉 | 過功率整定 | 5W-50kW | 2kW |
過功率延時 | 0-10s | 5s | |||||
| 10 | 欠功率保護 | 關閉/報警/跳閘 | 關閉 | 關閉 | 欠功率整定 | 5W-50kW | 2kW |
欠功率延時 | 0-10s | 5s | |||||
| 11 | 漏電保護 | 關閉/報警/跳閘 | ---- | ---- | ---- | --- | --- |
| ---- | ---- | --- | |||||
| 12 | 電壓不平衡 | 關閉/報警/跳閘 | / | / | 不平衡度 | 5%-30% | 20% |
延時時間 | 0-10s | 5s | |||||
| 13 | 電流不平衡 | 關閉/報警/跳閘 | 1 | / | 不平衡度 | 5%-30% | 20% |
延時時間 | 0-10s | 5s | |||||
| 14 | 報警允許 | 關閉/開啟 | 開啟 | 開啟 | ---- | --- -- | --- |
| 15 | 預警功能 | 關閉/開啟 | 開啟 | 開啟 | 預警比例 | 90~100% | 95% |
| 16 | 定時控制 | 關閉/開啟 | 關閉 | 關閉 | ---- | --- | |
| 17 | 自動合閘 | 關閉/開啟 | 關閉 | 關閉 | ---- | --- | |
| 18 | 漏電自檢 | 關閉/開啟 | ---- | ---- | ---- | ----- | --- |
| 19 | 漏電突變保護 | 關閉/開啟 | ---- | ---- | ---- | ----- | --- |
| 20 | 漏電重合 | 關閉/開啟 | ---- | ---- | ---- | --- | --- |
| 21 | 上電合閘 | 關閉/開啟 | / | / | 延時設置 | 1-60s | 3s |
| 22 | 錯相保護 | 關閉/報警/跳閘 | / | 關閉 | 錯相延時 | 0-5s | 2s |

GRD9S-F100型物聯網智能小型斷路器產品面板:
|
|
GRD9S-F100型物聯網智能小型斷路器產品接線: |
|
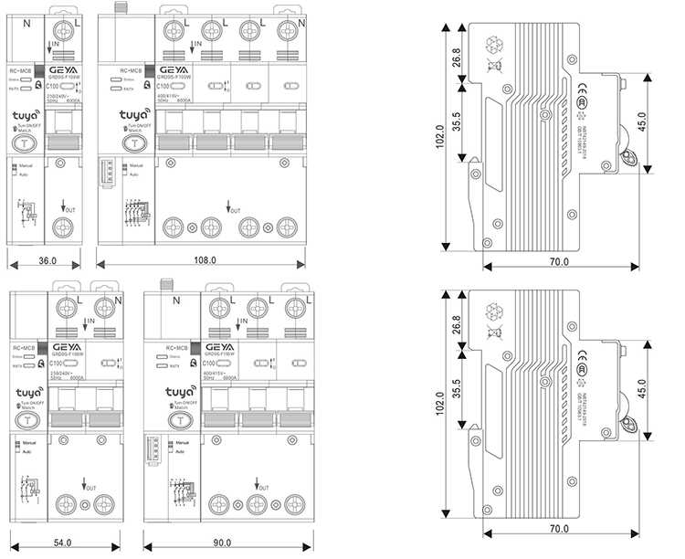
GRD9S-F100型物聯網智能小型斷路器產品尺寸: |
|
優惠券
我們的微信
13957717877
13957796089